• Part: VGM128032A9W12
  • Description: monochrome OLED display
  • Manufacturer: Unknown Manufacturer
  • Size: 1.43 MB
Download VGM128032A9W12 Datasheet PDF
Unknown Manufacturer
VGM128032A9W12
VGM128032A9W12 is monochrome OLED display manufactured by Unknown Manufacturer.
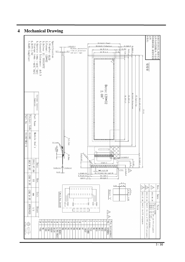
1 Overview VGM128032A9W12 is a monochrome OLED display module with 128×32 dot matrix. The characteristics of this display module are high brightness, self-emission, high contrast ratio, slim/thin outline, wide viewing angle, wide temperature range, and low power consumption.etc. 2 Features ¾ Display Color: White ¾ Dot Matrix:128×32 ¾ Driver IC: SSD1307 ¾ Interface: 8-bit 8080/8-bit 6800/4-Wire SPI/3-Wire SPI/I2C ¾ Wide range of operating temperature: -40℃ to 70℃ 3 Mechanical Data NO. ITEM Dot Matrix Dot Size Dot Pitch Aperture Rate Active Area Panel Size Module Size Diagonal A/A Size Module Weight SPECIFICATION 128(W)×32(H) 0.38(W)×0.38 (H)...